■
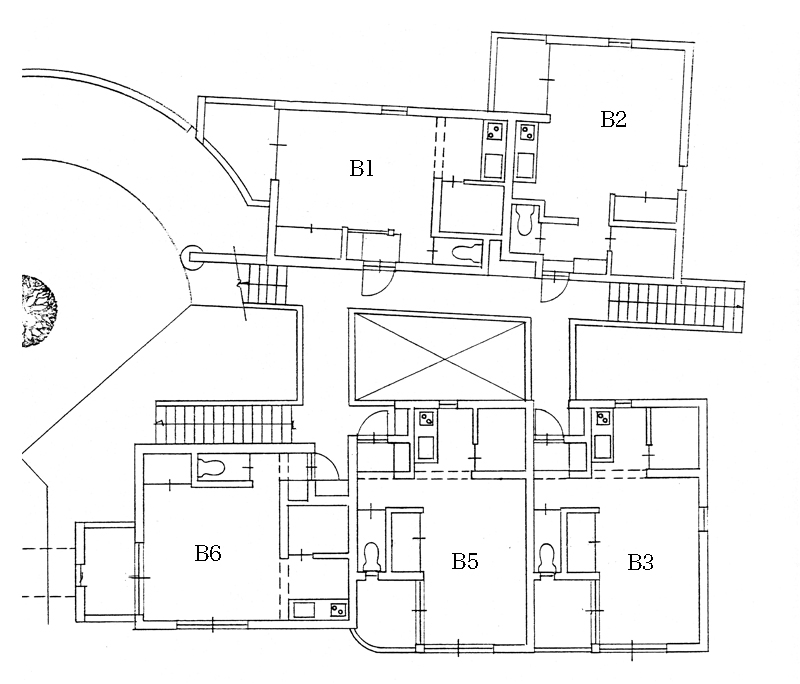
メゾンオレンジ3の平面図
■
オレンジ3A
■
オレンジ3B
戻る